Nuova realizzazione abitativa ubicata nella parte alta di Pregassona, gode di vista panoramica a 180° e ottima esposizione a Ovest. Accessibile mediante comoda strada, si compone di due unità abitative ed autorimessa comune al piano inferiore.
Residenza inserita in zona collinare gode di ottima privacy, nelle vicinanze di servizi e trasporti pubblici.
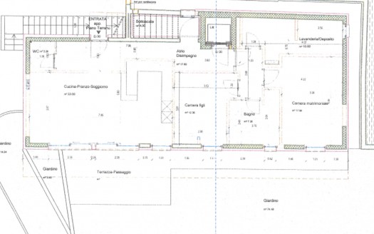
2° Piano appartamento 4 1/2 locali, ca. 125,00 mq + terrazza e giardino di ca. 30,00
Si compone di atrio d’ingresso / disimpegno, lift interno, ampio soggiorno con cucina, camera padronale con bagno privato e disimpegno riservato, due camere, bagno con vasca e doccia. Lavanderia interna, deposito esterno. Cantina a livello autorimessa.
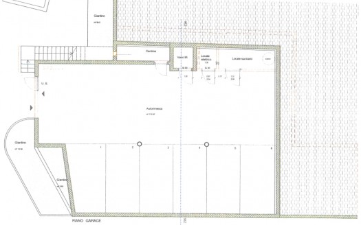
Piano inferiore (livello strada) con ampia autorimessa con 6 posti auto comodi
– vista panoramica a 180°
– terrazza/giardino riservato
– lift interno in ogni appartamento
– ogni piano un solo appartamento
– Lavanderia negli appartamenti
– zona solatia e molto tranquilla
– vicinanza ai principali servizi
– 2 unità abitative indipendenti
– autorimessa, 6 posti auto
– predisposizione climatizzazione
– impianto solare
– Prezzo Appartamento 4 1/2 locali CHF 1’300’000.– + CHF 50’000.– per posto auto
        
                    
                           
                         
                         
                         
                         
                         
                         
                         
                         
                         
                         
                         
                         
                         
                         
                         
                         
                           
                            
                            
                            
                            
                            
                            
                            
                            
                            
                            
                            
                            
                            
                            
                            
                            








































